【黃石】團城山大廈
更新時間:2019-03-27
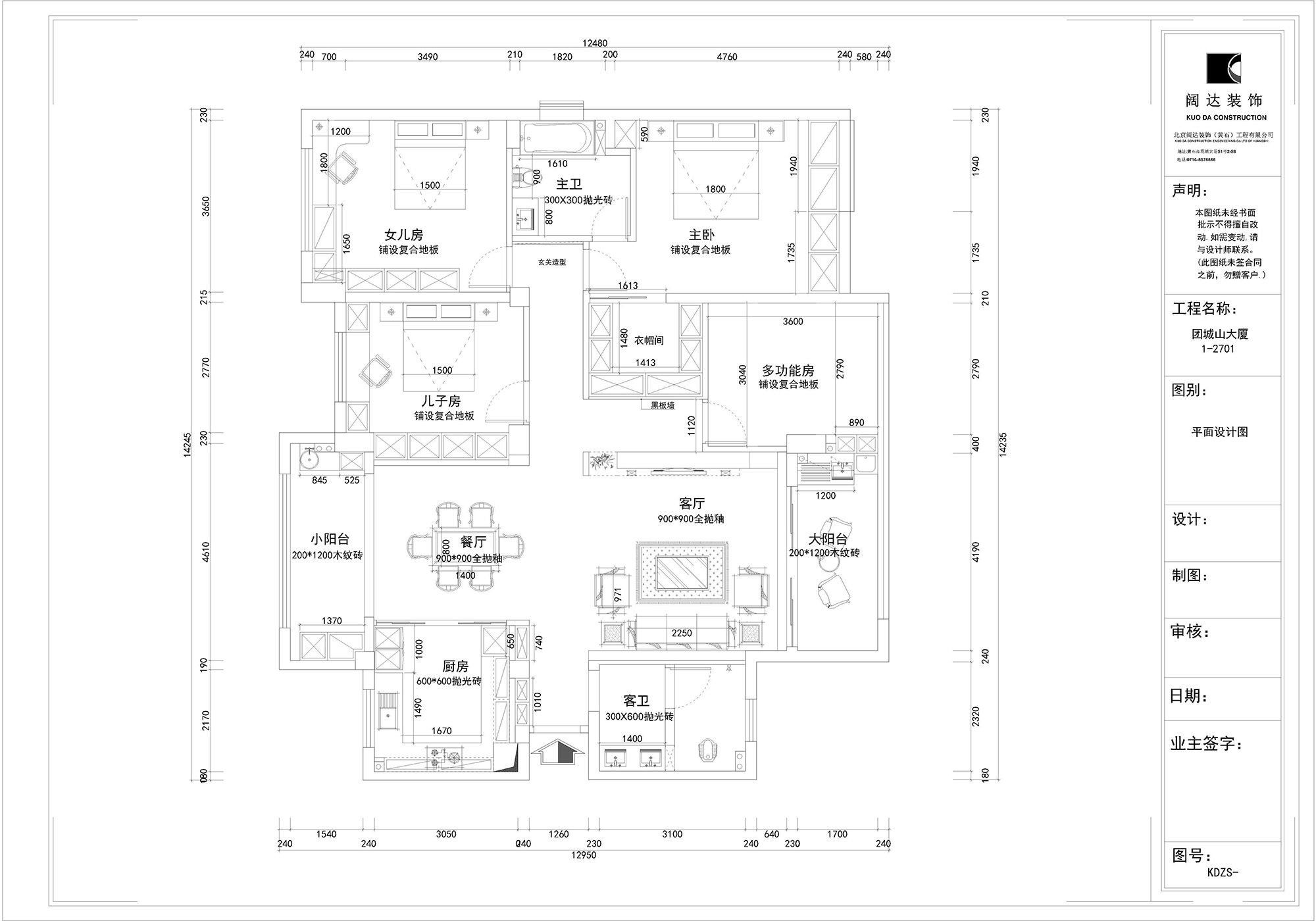
| 設計風格 | 港式 | 戶型案例 | 三室兩廳一廚兩衛 | 案例面積 | 190 |
|---|---|---|---|---|---|
| 樓盤名稱 | 團城山大廈 | 所在城市 | 黃石市 | 案例造價 | 35萬 |
| 設計師 | 徐小仙 | ||||

案例說明:
本案例采用港式風格裝修,業主是一對年輕小夫妻,還有一對兒女,他們對生活的熱愛從繁到簡,喜歡木質元素,更偏向于生活的干凈和簡單,包括軟裝的搭配也已簡單為主,簡約時尚。同風格案例:更多>>
同面積案例:
| 客服專線: | 010-84580331 | 加盟專線: | 010-82272748 | (工作日:9:00-18:00) |
預約加盟
預約裝修
客戶服務
返回頂部
闊達標準工程,一看就不同!
全國累計已有一百余家加盟公司
免費獲得家裝服務
全國各地業主都在申請!
闊達裝飾竭誠為您服務!
| 設計風格 | 港式 | 戶型案例 | 三室兩廳一廚兩衛 | 案例面積 | 190 |
|---|---|---|---|---|---|
| 樓盤名稱 | 團城山大廈 | 所在城市 | 黃石市 | 案例造價 | 35萬 |
| 設計師 | 徐小仙 | ||||
